新温泉町
文字サイズ大きく小さく元に戻す
TOPページまちづくり > 廻船問屋千原屋道盛邸整備事業

廻船問屋千原屋道盛邸整備事業

2026/02/16

事業概要
【事業目的】
新温泉町が令和5年12月に制定し文化庁の認定を受けた「新温泉町文化財保存活用地域計画」に示す「海のみち  日本海が育んだ景勝と営み」による文化財の保存活用を図る具体的措置として、「廻船問屋千原屋道盛邸」を保存するとともに、新温泉町の観光及びまちづくりの拠点施設として活用するため、旧道盛家住宅(千原屋)を整備する。

【文化財概要】
①名  称  廻船問屋千原屋道盛邸 (旧道盛家住宅)
②所 在 地  兵庫県美方郡新温泉町浜坂665
③建物概要  木造・瓦葺き建物(主屋・土蔵・倉庫・離れ) 11棟
④建築年代  明治末~大正初期
⑤道盛家概要 
 江戸時代から明治期にかけて、北前船による廻船問屋を営み、明治44年鉄道山陰本線の開通後は、鉱山業(砥石)や観光業(遊覧船会社・民宿)、特に昭和30年代後半からは臨海学校を受け入れるなど、諸寄の観光開発に尽力した。
⑥その他   日本遺産「北前船寄港地・船主集落」の構成文化財に認定

【事業概要】
①事業期間  令和7年度~令和10年度
≪事業スケジュール≫
 ・令和7年度:活用方針・整備方針・運営方針の決定
 ・令和8年度:公開プロポーザルによる基本設計業者の決定
        基本設計及び実施設計の作成
 ・令和9年度:主屋他改修工事に着手・竣工
 ・令和10年度:年度中のオープン予定

【整備検討委員会】
①委  員  12名(学識経験者・地区代表及びまちづくり団体代表・観光関係者・漁業関係者・公募委員)
②任  期  令和7年11月25日から廻船問屋千原屋道盛邸の整備が完了するまで
③検討委員会記録 
≪令和7年度≫
[第1回] 令和7年11月25日(火) 委員委嘱、委員長・副委員長の選任、事業概要・現地見学
[第2回] 令和7年12月23日(火) 先進地視察(鳥取県智頭町「石谷家住宅」「旧塩谷出店」)
[第3回] 令和8年 1月30日(金) 活用方針と整備方針について
[第4回] 令和8年 3月 9日(月) 活用方針と整備方針・運営方針について

【担当部局】
 新温泉町教育委員会・生涯教育課 文化財室 (浜坂先人記念館内)
  ℡ 0796-82-4490 ※FAXも同じ
  〒669-6702 兵庫県美方郡新温泉町 浜坂1208
   メール:bunkazai@town.shinonsen.lg.jp 



    




 
廻船問屋千原屋道盛邸全景写真
廻船問屋千原屋道盛邸全景写真
廻船問屋千原屋道盛邸位置図
廻船問屋千原屋道盛邸位置図
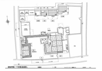
廻船問屋千原屋道盛邸平面図
廻船問屋千原屋道盛邸平面図


より良いウェブサイトにするためにみなさまのご意見をお聞かせください
このページは見つけやすかったですか?
このページの内容はわかりやすかったですか?
このページの内容は参考になりましたか?